Tárnok
Eladó Ház
, Halász József utca
104 m2
129.900.000 Ft
FV-00119
Tárnok - Eladó Ház
Halász József utca
104 m2
129.900.000 Ft
FV-00119
Újépítésű családi ház tárnokon, nagy telekkel
Leírás
A hirdetésben szereplő ingatlan önálló családi házként kerül megépítésre 957m2 önálló, körbekerített telken.
Az építkezés már előrehaladott állapotban van!
Főbb műszaki jellemzők:
-Engedélyezett tervek
-Hasznos alapterület 104m2
-Vasbeton sávalap, 30cm Porotherm X-therm Okostégla főfalak
-Ytong belső válaszfalak, a tetőtérben gipszkarton válaszfalak
-földszinten monolit vasbeton lemez födém + 5 cm Rockwool hanggátló szigetelés
-A+ Energetikai besorolás
-„H”-tarifa
-Hőszivattyús fűtés rendszer, padlófűtésen keresztül az egész házban
-3 rétegű, 7 légkamrás műanyag ablakok, fehér színben, rejtett redőnytokos redőnyökkel és szúnyoghálókkal
-20cm EPS homlokzati hőszigetelés
-tetőtérben a szarufák között-gipszkarton födém felett 30 cm Rockwool közetgyapot szigetelés
-Választható beltéri burkolatok, szaniterek, előre megbeszélt árban
-Beltéri ajtók fehér, vízszintes csíkozású, festettek (fújt kivitelben, festőkamrában)
-Belső falak glettelve, alap fehér festéssel
-TV, Internet, Riasztó, Kamerarendszer vezetékezés
-Autó töltéséhez kábelezés előkészítése (töltő nélkül)
-Belső elrendezés részben még módosítható
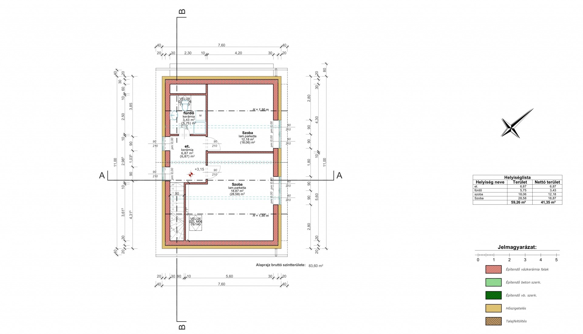
Helyiséglista:
-fsz.Előszoba_____________11,71m2
-fsz.Fürdőszoba___________2,86m2
-fsz.Konyha________________6,3m2
-fsz.Étkező________________5,04m2
-fsz.Közlekedő____________7,22m2
-fsz.Nappali______________18,12m2
-fsz.Szoba________________11,78m2
-em.Közlekedő____________6,87m2
-em.Szoba________________12,18m2
-em.Szoba________________18,87m2
-em.Fürdőszoba___________3,43m2
Fizetési ütemezés előreláthatólag 5 ütemben történne, 20%-os kezdőrészlettel. Támogatások és hitel igénybevétele esetén minimum 25% önerőre van szükség és az ütemezést a választott bankhoz igazítjuk.
A kulcsrakész befejezés 2026 nyarára várható, az időjárástól függően. Ezidő alatt a teljes befejezés nyomon követhető.
Lehetőség van egyedi méretre gyártott konyhabútorok, illetve egyéb bútorok megrendelésére és beépítésére, ezek nem a vételár részét képezik.
Elhelyezkedése kitűnő, a közelben óvoda (3 perc), iskola (5 perc) egészségház (5 perc), a mindennapi vásárlási lehetőséget nyújtó kisboltok, élelmiszerboltok, buszmegálló, sportolási lehetőség (edzőterem, érdi uszoda), zöldövezet Benta patak partja, sétáló rét, mind néhány percnyire az ingatlantól. M7 autópálya azonnal elérhető (budaörsi IKEA 10-15 perc). M6 autópálya kb. 10 percnyire, a 7-es főút 6 percnyire található a háztól.
Amennyiben felkeltettem érdeklődését, hívjon még ma és tekintse meg személyesen.
Hamarosan érkezünk további képekkel...
Paraméterek
Paraméterek
| Település: | 2461 Tárnok |
| Közterület: | Halász József utca |
| Tranzakció típusa: | Eladó |
| Ingatlan típusa: | Ház / Családi ház |
| Alapterület: | 104 m2 |
| Szobaszám: | 4 |
| CSOK PLUSZ: | Igen |
| 3% támogatásra jogosult: | Igen |
| Építés éve: | 2025 |
| Költözhető: | kevesebb mint 6 hónapon belül |
| Szerkezet: | Tégla ház |
| Telek terület: | 957 m2 |
| Állapot: | Újépítésű |
| Komfort: | Dupla komfortos |
| Szintek száma az épületben: | 2 szintes |
| Fűtés: | Hőszivattyú |
| Belmagasság: | 3 méter alatt |
| Wc és fürdőszoba: | Egy helyiségben |
| Erkély: | Nem |
| Akadálymentesített: | Nem |
| Kilátás: | Udvarra néző |
| Tájolás: | délnyugat, délkelet |
| Parkolás: | Parkolás az udvaron |
| Parkolás benne van az árban: | Igen |
| Energetikai tanúsítvány: | A+ (Túlteljesítő) |
| Extrák: | Alacsony rezsi, Légkondicionáló, Jogilag újépítésű, Tehermentes |
Az ingatlan elhelyezkedése
Kapcsolati adatok
Érdeklődjön az ingatlanról, e-mailben!
Adatkezelési hozzájáruló nyilatkozat
Jelen űrlap kitöltésével kifejezett hozzájárulásomat adom ahhoz, hogy a fentiekben általam önkéntesen szolgáltatott személyes adataimat a FIVE Ingatlan Kft ingatlanközvetítő, mint adatkezelő kezelje a hozzájárulásom visszavonásáig, abból a célból, hogy ingatlan eladás, vagy vásárlás céljából ajánlatokat juttasson el számomra.
A kapott e-mail mindig tartalmaz leiratkozásra szolgáló linket.
ADATKEZELÉSI TÁJÉKOZTATÓ
A FIVE Ingatlan Kft. tájékoztatja a vele kapcsolatban álló ügyfeleit a személyes adatainak kezelésével kapcsolatos gyakorlati
intézkedéseiről, jogairól és azok érvényesítésének lehetőségeiről.
A FIVE Ingatlan Kft. a vele kapcsolatba lépő személyek részére ingatlanközvetítési szolgáltatást (pl. Ingatlan értékesítése,
bérbeadása, egyéb hasznosítása, Ingatlan felkutatása vásárlás és bérlet céljából stb.) nyújt, valamint segítséget nyújt az ehhez
kapcsolódó egyéb szolgáltatások igénybevételéhez (pl. hitelfelvétel, jogi képviselet, energetikai tanúsítvány, értékbecslés,
ingatlanfelújítás stb.). A Five Ingatlan Kft. szolgáltatásairól részletes információt a www.fiveingatlan.hu weboldalon talál.
1. AZ ADATKEZELŐK SZEMÉLYE
FIVE Ingatlan Kft. (Székhely: 1138 Budapest, Jakab József u. 21. 7. em 34. ajtó , Cégjegyzékszám: Cg.01-09-420573,
Adószám: 32370034-1-41 , Weboldal: www.fiveingatlan.hu, E-mail: fiveingatlankft@gmail.com, Telefon: ), valamint a vele
jogviszonyban álló személyek, ingatlanközvetítők.
2. AZ ÉRINTETT
Az adatkezeléssel érintett személy az ügyfél, az a személy, aki az Adatkezelőkkel kapcsolatba lép és ennek során megadja adatait a
szerződés megkötése, a szolgáltatások igénybevétele céljából. Érintett az a személy is, akinek az adatai más módon (más Érintettől,
ügyféltől, nyilvános forrásból) kerülnek az Adatkezelőkhöz.
3. IRÁNYADÓ JOGSZABÁLYOK
Az Adatkezelők a tevékenységüket az Európai Unió és a magyar jogszabályok hatálya alatt végzik. Az adatkezelésre elsősorban az
Európai Unió általános adatvédelmi rendelete vonatkozik (Európai Parlament és a Tanács (EU) 2016/679 rendelete (2016. április 27.)
a természetes személyeknek a személyes adatok kezelése tekintetében történő védelméről és az ilyen adatok szabad áramlásáról,
valamint a 95/46/EK rendelet hatályon kívül helyezéséről; továbbiakban: „GDPR”). A GDPR szövege elérhető a http://eur-
lex.europa.eu/legal-content/HU/TXT/?uri=CELEX:32016R0679 honlapon.
Ezen túlmenően az irányadó jogszabályok:
? Az információs önrendelkezési jogról és az információszabadságról szóló 2011. évi CXII. törvény;
? a pénzmosás és a terrorizmus finanszírozása megelőzéséről és megakadályozásáról szóló 2017. évi LIII. törvény (a törvény
által előírt azonosítási, bejelentési, nyilvántartási adatokat illetően, továbbiakban: „Pmt.”);
? a számvitelről szóló 2000. évi C. törvény 169. § (a bizonylatok megőrzését illetően);
? a gazdasági reklámtevékenység alapvető feltételeiről és egyes korlátairól szóló 2008. évi XLVIII. törvény.
A vonatkozó jogszabályok elérhetők a http://net.jogtar.hu/ címen.
4. A TÁJÉKOZTATÓ HATÁLYA
Jelen Tájékoztató kizárólag a GDPR hatálya alá tartozó adatkezelésekre terjed ki.
A GDPR alapán személyes adat az azonosított vagy azonosítható természetes személyre (továbbiakban: „Érintett”) vonatkozó
bármely információ; azonosítható az a természetes személy, aki közvetlen vagy közvetett módon, különösen valamely azonosító
(például: név, szám, helymeghatározó adat, online azonosító) vagy a természetes személy testi, fiziológiai, genetikai, szellemi,
gazdasági, kulturális vagy szociális azonosságára vonatkozó egy vagy több tényező alapján azonosítható.
Mindezek alapján jelen Tájékoztató hatálya nem terjed ki azon adatokra, amelyek nem természetes személyekre vonatkoznak (pl.
cégadatok), vagy amelyek nem hozhatók kapcsolatba természetes személyekkel (pl. statisztikai adatok, azon adatok, amelyek
anonimizáltak). Jelen Tájékoztató hatálya kizárólag az Adatkezelők adatkezelésére terjed ki.
5. AZ ADATKEZELÉS ELVEI, CÉLJA, JOGALAPJA
5.1 AZ ADATKEZELÉS ELVEI
Az Adatkezelők az adatokat jogszerűen, tisztességesen, és az Érintett számára átlátható módon kezelik. Az Adatkezelők törekednek
arra, hogy az általuk kezelt adatok pontosak és naprakészek legyenek. Az Adatkezelők biztosítják az Érintett jogainak érvényesülését,
és megteszik a szükséges intézkedéseket annak érdekében, hogy az adatkezelés annak minden szakaszában jogszerű legyen.
5.2 AZ ADATKEZELÉS CÉLJA
Az adatkezelés elsődleges célja az Adatkezelők szolgáltatásainak nyújtása, és az ehhez kapcsolódó üzleti tevékenység elvégzése. Ezen
belül az adatkezelés céljai:
? Az érintett személyének azonosítása, az Érintettel való kapcsolatfelvétel és kapcsolattartás;
? Az Érintett által értékesíteni, bérbeadni kívánt ingatlan rögzítése az informatikai rendszerben, az értékesítés (bérbeadás)
elősegítése;
? Az Ingatlanra vonatkozó hirdetések közzététele, a lehetséges vevők (bérlők) felkutatása;
? Ingatlant kereső Érintett esetén az igények feltárása;
? Az Ingatlant kereső és kínáló ügyfelek között a kapcsolat létrehozása, az Ingatlanra vonatkozó ügylet létrejöttének
elősegítése;
? Egyeztetés a felek között az ügylettel kapcsolatban;
? Szükség esetén a hiteligény felmérése, és a pénzügyi szakértővel való kapcsolat felvétele;
? Az Érintett és az Adatkezelők között a megbízási szerződés létrehozása és teljesítése;
? Kapcsolódó szolgáltatások (pl. energetikai tanúsítvány, értékbecslés) nyújtása, ezen szolgáltatásokat nyújtó szolgáltatókkal
való kapcsolatfelvétel elősegítése;
? A jogviszonyból származó jogok gyakorlása, kötelezettségek teljesítése;
? Szerződésszegés (pl. megkerülés) esetén az igények érvényesítése;
? Jogszabályban elrendelt kötelezettségek teljesítése (pl. ügyfél-átvilágítás);
? Panaszkezelés, fogyasztóvédelem;
? Az Érintett külön hozzájárulása esetén reklámozás.
5.3 AZ ADATKEZELÉS JOGALAPJA
Figyelemmel arra, hogy az Adatkezelők több célból is kezelnek személyes adatot, az adatkezelés jogalapja is többféle lehet. A főbb
jogalapok az alábbiak, az egyes adatkezelésekhez kapcsolódó konkrét jogalapok a Tájékoztató 8. pontjában szerepelnek.
5.3.a AZ ÉRINTETT HOZZÁJÁRULÁSA (GDPR 6. cikk (1) bek. a) pont)
Az adatkezelés jogalapja elsősorban az Érintett hozzájárulása. Az Érintett a hozzájárulását azzal adja meg, hogy az Adatkezelőkkel
kapcsolatba lép, és kezdeményezi a szolgáltatások igénybevételét. Amennyiben az Érintett adatait az Adatkezelők valamelyike
felveszi, a hozzájárulást az Érintett az adatkezelési tájékoztató elfogadásával adja meg.
A hozzájárulás minden esetben önkéntes. Az Adatkezelők szolgáltatásai máshol elérhető, helyettesíthető, az esetek jelentős részében
nélkülözhető szolgáltatások, így az Érintett önkéntes elhatározásán alapul, hogy az Adatkezelőkkel kapcsolatba lép, és igénybe veszi a
szolgáltatásokat, vagy érdeklődik a szolgáltatások igénybevétele felől.
Az Adatkezelők az Érintettet minden esetben tájékoztatják az adatkezelésről. A rövidített, az adatkezelés főbb, GDPR-ban
meghatározott információit tartalmazó tájékoztatás szerepel az adatok rögzítésére szolgáló nyomtatványon, és az Érintettek számára
minden esetben elérhető a jelen, teljes körű Tájékoztató is online felületen.
5.3.b AZ ADATKEZELŐK ÉS AZ ÉRINTETT KÖZÖTT LÉTREJÖTT SZERZŐDÉS (GDPR 6. cikk (1) bek. b) pont)
Amennyiben az Érintett az Adatkezelőkkel szerződést köt, a szerződésben és a kapcsolódó nyomtatványokon megadja azon adatait,
amelyek szükségesek a szerződés teljesítéséhez. A szerződés minden esetben tartalmazza az Érintett tájékoztatását az adatkezelésről.
Amennyiben az Érintett a szerződéskötést megelőzően megadja adatait a szerződés előkészítése, megkötése, az igények felmérése
érdekében, az Adatkezelők ezen lépések érdekében kezelik az Érintett adatait, az Érintett tájékoztatása mellett.
A szerződés megkötése minden esetben önkéntes. Az Érintett a szolgáltatásokról és az adatkezelésről szóló tájékoztató alapján hozhat
döntést arról, hogy a szerződést megköti-e vagy sem.
A jelen pont szerinti esetben az adatkezelés a szerződés teljesítése és az Érintett által kezdeményezett lépések megtétele érdekében
történik, a GDPR hivatkozott pontja alapján.
Amennyiben az Érintett valamely, az Adatkezelők által kért, vagy szerződésben megjelölt adat kezeléséhez nem járul hozzá, jogában
áll az adat megadását megtagadni. Amennyiben az adat kezelése jogszabály alapján kötelező, vagy az adat hiányában a szerződés nem
teljesíthető, az adat megadásának hiányában a szerződés nem jön létre. Erről az érintett minden esetben tájékoztatást kap.
5.3.c JOGSZABÁLYBAN FOGLALT KÖTELEZETTSÉG TELJESÍTÉSE (GDPR 6. cikk (1) bek. c) pont)
Az adatkezelés jogalapja bizonyos esetekben jogszabály rendelkezése. A főbb, adatkezelést is előíró jogszabályok a 3. pontban
meghatározott jogszabályok.
5.3.d AZ ADATKEZELŐK VAGY EGY HARMADIK FÉL JOGOS ÉRDEKEINEK ÉRVÉNYESÍTÉSE (GDPR 6. cikk (1)
bek. f) pont)
Amennyiben az adatkezelés szükséges az Adatkezelők, vagy harmadik fél jogos érdekének érvényesítéséhez, az adatot az
Adatkezelők felhasználják ezen érdek érvényesítése céljából. A jelen bekezdés szerinti adatkezelés kivételes, arra csak egyedi
elbírálás ún. érdekmérlegelési teszt alapján kerül sor, a jelen Tájékoztatóban meghatározott esetekben. Az Adatkezelők az
érdekmérlegelési teszt során minden esetben pontosan azonosítják azt az érdeket, amely indokolja az adatkezelést, és megvizsgálják,
hogy más módon (jogalappal) az adatkezelés megvalósítható-e. Az érdekmérlegelési teszt során minden esetben vizsgálatra kerül az
érintett jogainak esetleges sérelme, és azon intézkedések lehetősége, amelyek ezen jogok esetleges sérelmét csökkentik, illetve az
Érintettnek segítséget nyújtanak a jogaik érvényesítésében.
6. AZ ADATKEZELÉS LEÍRÁSA, AZ ADATOK FELVÉTELE, A KEZELT ADATOK KÖRE
6.1 AZ ADATKEZELÉS LEÍRÁSA
Amennyiben az Érintett Ingatlant kínál, és az értékesítésre (bérbeadásra) megbízást ad, a szerződést minden esetben az
Ingatlanközvetítőkkel köti meg. A szerződés szerinti szolgáltatást a FIVE Ingatlan Kft.-vel jogviszonyban álló személyek, mint
Megbízott Ingatlanközvetítők nyújtják, a FIVE Ingatlan Kft. által biztosított informatikai rendszer és dokumentációs háttér
használatával. Ebben az esetben az Érintett megadja az adatait a szerződésben, valamint a kapcsolódó nyomtatványokon. A Megbízott
Ingatlanközvetítő rögzíti az adatokat, előkészíti az Ingatlan hirdetését, és elkészíti az Ingatlanról a hirdetésekben megjelenő
fényképeket. Az elkészült hirdetéseket az Adatkezelők közzéteszik a Weboldalon, az egyes, ingatlanközvetítéssel foglalkozó
portálokon, a belső anyagokban, és egyes nyilvános felületeken. A hirdetésben személyes adatok nem szerepelnek, csak a Megbízott
Ingatlanközvetítő elérhetőségei.
Ingatlan keresése esetén az Ingatlanközvetítő rögzíti a FIVE Ingatlan Kft. informatikai rendszerében a kereső igényeit, keresésre
vonatkozó megbízás esetén személyes adatait. Amennyiben az Érintett számára ingatlan kerül bemutatásra, az Ingatlanközvetítő a
Megtekintési tanúsítványon rögzíti az Érintett adatait és a megtekintett Ingatlan adatait.
6.2 AZ ADATOK FELVÉTELE
Az Adatkezelők az adatokat elsősorban az Érintettől veszik fel. Az adatfelvétel az alábbi módokon történhet:
6.2.a Weboldalon keresztül: Amennyiben az Érintett a Weboldalon keresztül lép kapcsolatba az Adatkezelőkkel, adatait a
Weboldalon keresztül, az erre szolgáló felületen adja meg. Ebben az esetben az Érintett elfogadja jelen Tájékoztatót, és hozzájárulást
ad a jelen Tájékoztató szerinti adatkezeléshez. Az adatkezeléshez való hozzájárulásról az Érintettnek nyilatkoznia kell (jelölőnégyzet
elfogadásával).
6.2.b Ingatlanközvetítőkön keresztül : Amennyiben az Érintett az Ingatlanközvetítőkkel lép kapcsolatba, az adatokat az
Ingatlanközvetítők rögzítik az erre a célra rendszeresített nyomtatványokon keresztül. Az Érintettnek ebben az esetben is nyilatkoznia
kell arról, hogy adatai kezeléséhez hozzájárul.
6.2.c Más forrásokból történő adatfelvétel: Az Adatkezelők az Érintett által közzétett (pl. hirdetésben szereplő) adatokat
(telefonszám, e-mail cím) rögzítik kapcsolatfelvétel céljából. Egyéb esetben az Adatkezelők adatokat más forrásból kizárólag akkor
vesznek át, ha erre törvény felhatalmazást ad. Az Adatkezelők a nyilvános, bárki számára hozzáférhető adatállományokból (így
különösen az ingatlan-nyilvántartásból) is vesznek fel adatokat, amennyiben azok szükségesek az adatkezelés céljának eléréséhez.
6.3 A KEZELT ADATOK KÖRE
Az Adatkezelő által kezelt személyes adatok az alábbiak szerint csoportosíthatóak:
6.3.a Azonosításhoz szükséges adatok: az Érintett családi és utóneve, születési családi és utóneve, születési helye, ideje, anyja
születési neve, állandó lakcíme, ennek hiányában tartózkodási helye, azonosító okmányának típusa és száma.
6.3.b Ügyfél-átvilágítási kötelezettséggel kapcsolatos adatok: a fenti 6.3.a pont szerinti adatok mellett az Érintett állampolgársága,
az a körülmény, hogy az Érintett a saját nevében, vagy más tényleges tulajdonos nevében jár el. Amennyiben a tényleges tulajdonos
nevében jár el : a tényleges tulajdonos családi és utóneve, születési családi és utóneve, állampolgársága, születési helye és ideje,
állandó lakcíme, ennek hiányában tartózkodási helye, valamint az Érintett közszereplői minőségére vonatkozó adat. Amennyiben az
ügyfél nem természetes személy, az adatkezelő kezeli a képviseletre jogosult nevét, beosztását, kézbesítési megbízott azonosításra
alkalmas adatait, a tulajdonosi érdekeltség jellegére és mértékére vonatkozó adatot.
6.3.c Kapcsolattartáshoz szükséges adatok: név, cím, telefonszám, e-mail cím.
6.3.d Ingatlannal kapcsolatos adatok: az Ingatlan címe, helyrajzi száma, alapterülete, egyéb, az értékesítéssel kapcsolatos lényeges
tulajdonságai, árral (eladási árral vagy bérleti díjjal) kapcsolatos információk.
6.3.e Ingatlanról készült fényképek: a Megbízott az Ingatlan felvétele során fényképet készít az Ingatlanról, amely a hirdetésben
megjelenik.
6.3.f Keresett Ingatlanra vonatkozó adatok: amennyiben az Érintett Ingatlant keres, az Adatkezelők kezelik az Érintett által
megadott, a keresett Ingatlanra vonatkozó adatokat (pl. alapterület, ár, elhelyezkedés).
6.3.g Díjfizetéssel kapcsolatos adatok: Amennyiben az Adatkezelők számlát állítanak ki, kezelik a számla kiállításához szükséges
adatot (vevő neve, címe, szolgáltatás meghatározása, esedékesség, díj összege).
6.3.h Igényekkel kapcsolatos adatok: Amennyiben az Érintett és az Adatkezelők között jogvita alakul ki (pl. az Érintett a díjat nem
fizeti meg, vagy az Ingatlant a Megbízott által közvetített vevőnek a Megbízott megkerülésével adja el), az Adatkezelők kezelik az
igény jogalapjára, természetére, mértékére vonatkozó adatokat, valamint az igény érvényesítését lehetővé tevő bizonyítékokat.
7. AZ ADATKEZELÉS HELYE
A papír alapú dokumentumokat minden esetben FIVE Ingatlan Kft. őrzi. Valamennyi adat rögzítésre kerül a FIVE Ingatlan Kft.
informatikai rendszerében, amelyet a Webrakéta Kft. Tárhely-szolgáltató biztosít részére. Ide feltöltésre kerülnek az egyes
dokumentumokról készült fényképek, így az adatkezelés helye a FIVE Ingatlan Kft. székhelye.
8. AZ EGYES ADATKEZELÉSEK
8.1 INGATLAN ÉRTÉKESÍTÉSÉHEZ, BÉRBEADÁSHOZ KAPCSOLÓDÓ ADATKEZELÉSEK
Az adatkezelés leírása: Az Adatkezelők elsődleges szolgáltatása az Ingatlanok közvetítése, az Ingatlanértékesítési, bérbeadási
tevékenység elősegítése. Ezen szolgáltatást az Érintettel kötött szerződés alapján a Megbízott Ingatlanközvetítők nyújtják a FIVE
Ingatlan Kft. informatikai rendszerének felhasználásával. Az adatkezelés során sor kerül a szerződés megkötésére, az adatok
rögzítésére, az Ingatlan hirdetésére, bemutatására, érdeklődők felkutatására.
Kezelt adatok köre: A kezelt adatok a fenti 6.3.a, 6.3.b, 6.3.c, 6.3.d, 6.3.e pont szerinti adatok.
Az adatkezelés célja:
? Az Érintett személyének azonosítása, az Érintettel való kapcsolatfelvétel és kapcsolattartás;
? Az Érintett által értékesíteni, bérbeadni kívánt Ingatlan rögzítése az informatikai rendszerben, az értékesítés (bérbeadás)
elősegítése;
? Az Ingatlanra vonatkozó hirdetések közzététele, a lehetséges vevő (bérlők) felkutatása;
? Az Ingatlant kereső és kínáló ügyfelek között a kapcsolat létrehozása, az Ingatlanra vonatkozó ügylet létrejöttének
elősegítése;
? Egyeztetés a felek között az ügylettel kapcsolatban;
? Az Érintett és az Adatkezelők között a megbízási szerződés létrehozása és teljesítése;
? Kapcsolódó szolgáltatások (pl. energetikai tanúsítvány, értékbecslés, Ingatlan felkészítése bemutatásra) nyújtása, ezen
szolgáltatásokat nyújtó személyekkel való kapcsolatfelvétel elősegítése;
? A jogviszonyból származó jogok gyakorlása, kötelezettségek teljesítése.
Az adatkezelés jogalapja: Az adatkezelés jogalapja az Érintett hozzájárulása, valamint az Érintett és az Adatkezelők közötti
szerződés teljesítése, az Érintett által kezdeményezett lépések megtétele.
Az adatkezelés időtartama: Az adatkezelés időtartama a jogviszony megszűnését követő nyolc év. Az időtartamot az indokolja,
hogy a jogviszony megszűnését követően igények érvényesítésére sor kerülhet mindkét fél részéről. A Pmt. hatálya alá tartozó adatok
tekintetében a megőrzési idő ugyancsak nyolc év.
8.2 INGATLAN KERESÉSÉHEZ KAPCSOLÓDÓ ADATKEZELÉS
Az adatkezelés leírása: Amennyiben olyan Érintett lép kapcsolatba az Adatkezelőkkel, aki Ingatlant szeretne vásárolni (bérbevenni),
az Adatkezelők (elsősorban az Ingatlanközvetítők) rögzítik az Érintett adatait és a keresett Ingatlanra vonatkozó adatokat.
Amennyiben az Érintett az Ingatlanközvetítőkkel szerződést köt, az Adatkezelők a szerződés alapján járnak el a keresés során.
Kezelt adatok köre: A kezelt adatok a fenti 6.3.c és 6.3.f pont szerinti adatok, szerződéskötés esetén a 6.3.a és 6.3.b. pont szerinti
adatok.
Az adatkezelés célja:
? Az Érintett személyének azonosítása, az Érintettel való kapcsolatfelvétel és kapcsolattartás;
? Ingatlant kereső Érintett esetén az igények feltárása;
? Az Ingatlant kereső és kínáló ügyfelek között a kapcsolat létrehozása, az Ingatlanra vonatkozó ügylet létrejöttének
elősegítése;
? Egyeztetés a felek között az ügylettel kapcsolatban;
? Szükség esetén a hiteligény felmérése, és a pénzügyi szakértővel való kapcsolat felvétele;
? Az Érintett és az Adatkezelők között a megbízási szerződés létrehozása és teljesítése;
? A jogviszonyból származó jogok gyakorlása, kötelezettségek teljesítése.
Az adatkezelés jogalapja: Az adatkezelés jogalapja az Érintett hozzájárulása, szerződéskötés esetén az Érintett és az Adatkezelők
közötti szerződés teljesítése, az Érintett által kezdeményezett lépések megtétele.
Az adatkezelés időtartama: Amennyiben nem jön létre szerződés, az Adatkezelők törlik az adatokat, ha a keresés eredménytelen, és
az adatkezelésnek más célja nincs. Szerződéskötés esetén az adatkezelés időtartama a jogviszony megszűnését követő öt év. Az
időtartamot az indokolja, hogy a jogviszony megszűnését követően igények érvényesítésére sor kerülhet.
8.3 MEGTEKINTÉSI TANÚSÍTVÁNY
Az adatkezelés leírása: Amennyiben az Érintett számára Az Ingatlanközvetítők Ingatlant mutatnak be, a Megtekintési tanúsítványon
kerül sor annak rögzítésére, hogy kinek, mely Ingatlan bemutatására került sor. Utóbb a Megtekintési tanúsítvány szolgál annak
bizonyítására, hogy az adott Ingatlant az Ingatlanközvetítők mutatták be az Érintett számára.
Kezelt adatok köre: A kezelt adatok a fenti 6.3.a és 6.3.c pont szerinti adatok, valamint a bemutatott Ingatlan címe és helyrajzi
száma.
Az adatkezelés célja:
? Az Érintett személyének azonosítása, az Érintettel való kapcsolatfelvétel és kapcsolattartás;
? Az Ingatlant kereső és kínáló ügyfelek között a kapcsolat létrehozása, az Ingatlanra vonatkozó ügylet létrejöttének
elősegítése;
? Egyeztetés a felek között az ügylettel kapcsolatban;
? Szükség esetén a hiteligény felmérése, és a pénzügyi szakértővel való kapcsolat felvétele;
? A jogviszonyból származó jogok gyakorlása, kötelezettségek teljesítése.
Az adatkezelés jogalapja: Az adatkezelés jogalapja az Érintett hozzájárulása, szerződéskötés esetén az Érintett és az Adatkezelők
közötti szerződés teljesítése, az Érintett által kezdeményezett lépések megtétele.
Az adatkezelés időtartama: Az adatokat az Adatkezelő a jogviszony megszűnésétől számított öt évig őrzi. Az időtartamot az
indokolja, hogy a jogviszony megszűnését követően igények érvényesítésére sor kerülhet.
8.4 IGÉNYEK, KÖVETELÉSEK ÉRVÉNYESÍTÉSE
Az adatkezelés leírása: Amennyiben az Adatkezelők és az Érintett között jogvita alakul ki, és ezen vita során valamely fél a másik
féllel szemben (anyagi vagy egyéb természetű) igényt kíván érvényesíteni, az ehhez szükséges adatok felhasználhatók az
igényérvényesítés során.
Az Adatkezelők részéről a leggyakoribb igényérvényesítési indokok:
? a megkerülés (amikor az Adatkezelők által kapcsolatba került Érintettek az Adatkezelők megkerülésével létesítenek
jogviszonyt kifejezetten azzal a céllal, hogy megkerüljék az Adatkezelőket, ezáltal mentesüljenek a díjfizetés kötelezettsége
alól),
? fizetési kötelezettség megtagadása (amikor az Érintett a díjfizetési kötelezettségének nem tesz eleget, azt megtagadja). Az
Adatkezelők ebben az esetben felhasználják a kezelt adatokat abból a célból, hogy bizonyítsák az igény megalapozottságát,
és szükség esetén az igényt jogi úton érvényesítsék. Ennek során sor kerülhet az igény bizonyítására, a követelés jogi úton
történő behajtására.
Kezelt adatok köre: A kezelt adatok köre az adott igény természetétől, jogalapjától, jellegétől függ, a fenti 6.3 pont szerinti
valamennyi adat felhasználásra kerülhet, ha az igény érvényesítése azt szükségessé teszi.
Az adatkezelés célja:
? A jogviszonyból származó jogok gyakorlása, kötelezettségek teljesítése;
? Szerződésszegés (pl. megkerülés) esetén az igények érvényesítése.
Az adatkezelés jogalapja: Az adatkezelés jogalapja részben jogszabály rendelkezése, azon jogszabályoké, amelyek az igény
érvényesítését a felek közötti jogviszonyban lehetővé teszi. Amennyiben az igény szerződésen alapul, az adatkezelés jogalapja az
Érintett és az Adatkezelők közötti szerződés teljesítése. Az adatkezelés jogalapja emellett az Adatkezelők jogos érdekeinek
érvényesítése
Az adatkezelés időtartama: Az adatkezelés az igény érvényesítéséig tart, ennek hiányában addig, amíg az igény jogi úton
érvényesíthető. Az Adatkezelők törlik az adatokat, ha az igény nem érvényesíthető, így különösen, ha az elévült, vagy az igény
érvényesítése sikertelen.
9. ÉRDEKMÉRLEGELÉSI TESZT RÖVID BEMUTATÁSA
A jelen pont szerinti adatkezelés esetén az Adatkezelők érdeke az, hogy a közöttük és az Érintettek között létrejött szerződés
teljesítése esetén hozzájussanak az őket megillető ellenszolgáltatáshoz.
Minden esetben olyan igény érvényesítését szolgálja az adatkezelés, amely szerződésen, vagy valamely fél kötelezettségvállalásán
alapul (pl. megtekintő személy kötelezettségvállalása arra, hogy a megtekintett Ingatlant az adatkezelőkön keresztül vásárolja meg); a
szerződés megkötése, vagy a kötelezettségvállalás minden esetben az Érintettek önkéntes elhatározása alapján történt. Vagyis az
Érintettek vállalták a kötelezettséget arra, hogy a szolgáltatás igénybe vétele esetén az Adatkezelőket nem kerülik meg, és részükre a
szerződés szerinti díjat megfizetik.
Az Adatkezelőknek jogos, szerződésen alapuló érdeke és joga, hogy ezen díjhoz hozzájussanak.
Amennyiben az Érintett önkéntesen nem teljesíti az Adatkezelők igényét, azokat az Adatkezelők kénytelenek jogi úton, az irányadó
jogszabályokban rögzítettek szerint érvényesíteni, vagyis nincs más mód a cél elérésére.
Az igény érvényesítésének feltétele azon adatok felhasználása, amelyek szükségesek az igény alátámasztásához, bizonyításához, a
szükséges eljárások megindításához; ezen adatok felhasználása nélkül az igény nem érvényesíthető, mivel az Adatkezelők nem tudják
azt bizonyítani, az eljárásokat megindítani.
Figyelemmel arra, hogy az adatkezelést kiváltó ok az Érintett jogellenes eljárása, és az adatok felhasználására jogszabályban
meghatározott módon (eljárásban) kerül sor, az adatkezelés nem tekinthető aránytalan korlátozásnak.
A felek mellérendelt viszonyára és egyenlő elbánására figyelemmel, amennyiben az Érintett kíván igényt érvényesíteni az
Adatkezelőkkel szemben, az Adatkezelők az általuk kezelt adatokat az Érintettnek átadják.
10. REKLÁMOZÁS
Az adatkezelés leírása: Amennyiben az Érintett ahhoz hozzájárul, az Adatkezelők megkeresik reklámokkal. A reklámok (hírlevelek)
minden esetben az Adatkezelők szolgáltatásairól szólnak, vagy olyan kapcsolódó szolgáltatásokról, termékekről, amelyek az
Adatkezelők szolgáltatásához szorosan kapcsolódnak. A reklámok (hírlevelek) küldésére kizárólag akkor kerül sor, ha az Érintett
ahhoz hozzájárult, vagy önálló nyilatkozatban, vagy nyomtatványon a vonatkozó jelölőnégyzet útján, vagy a Weboldalon keresztül.
Az Adatkezelők a reklámokat nem értékesítik, tehát nem küldenek ki reklámot harmadik személy által fizetett díj ellenében.
Kezelt adatok köre: A kezelt adatok a fenti 6.3.c pont szerinti adatok.
Az adatkezelés célja: Az Érintett külön hozzájárulása esetén reklámozás.
Az adatkezelés jogalapja: Az adatkezelés jogalapja az Érintett hozzájárulása.
Az adatkezelés időtartama: Az adatkezelés addig tart, amíg az Érintett a hozzájárulását vissza nem vonja, vagy megtiltja a további,
reklámozási célú adatkezelést, vagy tiltakozik a reklámozási célú adatkezelés ellen. Amennyiben az Érintett adatai törlésre kerülnek, a
reklámozási célú adatkezelés is megszűnik.
11. PÉNZMOSÁS ÉS TERRORIZMUS FINANSZÍROZÁSA MEGELŐZÉSE ÉRDEKÉBEN VÉGZETT ADATKEZELÉS
Az adatkezelés leírása: Az Adatkezelők a Pmt. szerinti ügyfél-átvilágítási kötelezettség érdekében kezelik az Érintett személyes
adatait. Az üzleti kapcsolat létesítésekor Az Ingatlanközvetítő rögzíti az Érintett Pmt. által meghatározott adatait, és amennyiben
fennáll valamely, a Pmt.-ben meghatározott kötelezettség, adatot szolgáltatnak az illetékes hatóság részre.
Kezelt adatok köre: A kezelt adatok a fenti 6.3.a és 6.3.b pont szerinti adatok.
Az adatkezelés célja: Jogszabályban elrendelt kötelezettségek teljesítése.
Az adatkezelés jogalapja: Az adatkezelés jogalapja a Pmt. ellenőrzést, adatrögzítést, nyilvántartásba vételt előíró rendelkezései.
Az adatkezelés időtartama: Az adatkezelés időtartama a Pmt. 56. § alapján az üzleti kapcsolat megszűnésétől, illetve az ügyleti
megbízás teljesítésétől számított nyolc év.
12. WEBOLDAL ADATKEZELÉSE
Az adatkezelés leírása: Amennyiben az Érintett a Weboldalon regisztrál, és megadja adatait, azokat a FIVE Ingatlan Kft., mint a
Weboldal fenntartója kezeli. Az adatkezelés célja – az Érintett által igénybe vett szolgáltatásról függően – hírlevél küldése, vagy az
Érintett által feltöltött Ingatlan hirdetése. A FIVE Ingatlan Kft. az Érintett által feltöltött Ingatlan adatait megjeleníti a Weboldalon, és
az ott elérhető rendszerben kereshetővé teszi az érdeklődők számára. Amennyiben az Érintett az Adatkezelőkkel szerződést köt, az
adatkezelésre a fenti 8.1. pont megfelelően irányadó. Az adatokat a FIVE Ingatlan Kft. és a vele jogviszonyban álló
Ingatlanközvetítők kezelik. A Weboldalhoz kapcsolódóan sor kerül technikai adatok kezelésére és cookie-k alkalmazására, az alábbi
14.4 pontban meghatározottak szerint.
Kezelt adatok köre: A kezelt adatok a fenti 6.3.c, 6.3.d, 6.3.e pont szerinti adatok.
Az adatkezelés célja:
? Az Érintett személyének azonosítása, az Érintettel való kapcsolatfelvétel és kapcsolattartás;
? Az Érintett által értékesíteni, bérbeadni kívánt Ingatlan rögzítése az informatikai rendszerben, az értékesítés (bérbeadás)
elősegítése;
? Az Ingatlanra vonatkozó hirdetések közzététele, a lehetséges vevő (bérlők) felkutatása;
? A jogviszonyból származó jogok gyakorlása, kötelezettségek teljesítése.
Az adatkezelés jogalapja: Az adatkezelés jogalapja az Érintett hozzájárulása.
Az adatkezelés időtartama: Az adatkezelés addig tart, amíg az Érintett a hozzájárulását vissza nem vonja, vagy az adatkezelés célja
nyilvánvalóan megszűnik. Amennyiben az Érintett jogviszonyba lép az Adatkezelőkkel (pl. szerződést köt), az adatai kezelése a
továbbiakban ez alapján történik.
13. SZÁMLÁZÁSSAL ÖSSZEFÜGGŐ ADATKEZELÉS
Az adatkezelés leírása: Amennyiben az Érintettnek díjfizetési kötelezettsége keletkezik, az arra jogosult adatkezelő (elsősorban a
Megbízott Ingatlanközvetítő) kiállítja az erről szóló számlát.
Kezelt adatok köre: A kezelt adatok a fenti 6.3.h pont szerinti adatok.
Az adatkezelés célja: Jogszabályban elrendelt kötelezettségek teljesítése.
Az adatkezelés jogalapja: Az adatkezelés jogalapja a számvitelről szóló 2000. évi C. törvény.
Az adatkezelés időtartama: Az adatkezelés időtartama a számla kiállításától számított nyolc év.
14. EGYÉB, AZ ADATKEZELÉSSEL KAPCSOLATOS INFORMÁCIÓK
14.1 ADATTOVÁBBÍTÁS
Az Adatkezelők személyes adatot csak akkor továbbítanak harmadik személy részére, ha ahhoz az Érintett egyértelműen – a
továbbított adatkör és az adattovábbítás címzettje ismeretében – hozzájárult, vagy az adattovábbításra törvény felhatalmazást ad.
14.2 ADATFELDOLGOZÁS
Az Adatkezelők a tevékenységük ellátásához jogosultak adatfeldolgozót igénybe venni. Az adatfeldolgozók önálló döntést nem
hoznak, az adatkezelés során az Adatkezelőkkel kötött írásbeli szerződés alapján, a szerződésben meghatározottak és az Adatkezelők
utasítása szerint, az Adatkezelők nevében járnak el. Az Adatkezelők ellenőrzik az adatfeldolgozók munkáját. Az adatfeldolgozók
további adatfeldolgozó igénybe vételére csak az Adatkezelők hozzájárulásával jogosultak. Az Adatkezelők adatfeldolgozóként
igénybe veszik a velük szerződéses jogviszonyban álló Ingatlanközvetítőket.
14.3 ADATBIZTONSÁG
Az Adatkezelők gondoskodnak az adatok biztonságáról, megteszik azokat a technikai és szervezési intézkedéseket és kialakítják
azokat az eljárási szabályokat, amelyek az adatbiztonság követelményének érvényesülését biztosítják. Az Adatkezelők az általuk
kezelt adatokat az irányadó jogszabályoknak megfelelően tartják nyilván, biztosítva, hogy az adatokat csak azok a munkavállalók, és
egyéb a FIVE Ingatlan Kft. érdekkörében eljáró személyek ismerhessék meg, akiknek erre munkakörük, feladatuk ellátása érdekében
szükségük van.
Az Adatkezelők az informatikai védelemmel kapcsolatos feladataik körében gondoskodnak különösen:
? A jogosulatlan hozzáférés elleni védelmet biztosító intézkedésekről, ezen belül a szoftver és hardver eszközök védelméről,
illetve a fizikai védelemről (hozzáférés védelem, hálózati védelem);
? Az adatállományok helyreállításának lehetőségét biztosító intézkedésekről, ezen belül a rendszeres biztonsági mentésről és a
másolatok elkülönített, biztonságos kezeléséről (tükrözés, biztonsági mentés);
? Az adatállományok vírusok elleni védelméről (vírusvédelem);
? Az adatállományok, illetve az azokat hordozó eszközök fizikai védelméről, ezen belül a tűzkár, vízkár, villámcsapás, egyéb
elemi kár elleni védelemről, illetve az ilyen események következtében bekövetkező károsodások helyreállíthatóságáról
(archiválás, tűzvédelem).
? Az Adatkezelők a papíralapú nyilvántartások védelme érdekében megteszik a szükséges intézkedéseket különösen a fizikai
biztonság, illetve tűzvédelem tekintetében.
? A munkavállalók, megbízottak, és egyéb, az Adatkezelők érdekében eljáró személyek az általuk használt, vagy birtokukban
lévő, személyes adatokat is tartalmazó adathordozókat, függetlenül az adatok rögzítésének módjától, kötelesek biztonságosan
őrizni és védeni.
14.4 TECHNIKAI ADATOK ÉS COOKIE-K KEZELÉSE
Amennyiben az Érintett meglátogatja a Weboldalt, a Weboldalhoz kapcsolódó rendszer rögzítheti a felhasználó számítógépének IP-
címét, a látogatás kezdő időpontját, illetve egyes esetekben – a számítógép beállításától függően – a böngésző és az operációs
rendszer típusát. Az így rögzített adatok egyéb személyes adatokkal nem kapcsolhatók össze. Az adatok kezelése kizárólag statisztikai
célokat szolgál.
A cookie-k lehetővé teszik a Weboldal számára, hogy felismerje a korábbi látogatókat. A cookie-k a FIVE Ingatlan Kft.-t, mint a
Weboldal üzemeltetőjét segítik a Weboldal optimalizálásában, abban, hogy a Weboldal szolgáltatásait a felhasználók szokásának
megfelelően alakítsa ki. A cookie-k alkalmasak továbbá arra, hogy:
? megjegyezzék a beállításokat, így nem kell azokat a felhasználónak újra rögzítenie, ha egy új oldalra lép,
? emlékeznek a korábban bevitt adatokra, ezért azokat nem kell újra begépelni,
? elemzik a honlap használatát annak érdekében, hogy az így nyert információk felhasználásával végrehajtott fejlesztések
eredményeként az a lehető legnagyobb mértékben a felhasználó elvárásai szerint működjön, a felhasználó könnyen
megtalálja a keresett információt, és
? figyelemmel kísérik hirdetéseink hatékonyságát.
Amennyiben a Weboldalon a FIVE Ingatlan Kft. külső webes szolgáltatások segítségével jelenít meg különféle tartalmakat, az néhány
olyan cookie tárolását eredményezheti, melyeket nem a FIVE Ingatlan Kft. felügyel, így nincs befolyása arra, hogy ezek a
weboldalak, illetve külső domainek milyen adatokat gyűjtenek. Ezen cookie-król az adott szolgáltatásra vonatkozó szabályzatok
adnak tájékoztatást.
A FIVE Ingatlan Kft. a cookie-kat felhasználhatja arra, hogy az Érintettek felé a Google és a Facebook útján reklámokat jelenítsen
meg. Az adatkezelés emberi beavatkozás nélkül történik.
A felhasználó beállíthatja webes keresőjét úgy, hogy elfogadjon minden cookie-t, elutasítsa mindet, vagy értesítse a felhasználót, ha
cookie érkezik a gépére. A beállítási lehetőségek általában a böngésző „Opciók” vagy „Beállítások” menüpontjában találhatók.
Az angol nyelvű www.aboutcookies.org weboldalon található részletes tájékoztató szintén segít a különböző böngészőkben történő
beállításokban.
14.5 AZ ADATKEZELÉS IDŐTARTAMA
Az Adatkezelők a törlésre vonatkozó szabályok kialakításával és betartásával biztosítják, hogy a személyes adatok kezelésének
időtartama ne haladja meg a szükséges és jogszerű mértéket. Az adatok törlésére az alábbi esetekben kerül sor:
? A személyes adatokra már nincs szükség abból a célból, amelyből azokat gyűjtötték vagy más módon kezelték.
Amennyiben az adatkezelés célja megszűnt, és az adat kezelését jogszabály nem teszi kötelezővé, az adatot az Adatkezelők
törlik.
? Az Érintett a hozzájárulását visszavonja. Amennyiben az Érintett a hozzájárulását visszavonja, vagy az adatok törlését az
Érintett kéri, az Adatkezelők minden esetben megvizsgálják, hogy jogszabály alapján kötelező-e az adatkezelés. Ha igen, a
törlési kérelmet az Adatkezelők megtagadják. Ha az adat kezelése nem kötelező, de arra az Adatkezelőknek van jogalapja, és
az adatkezelés szükséges jogi igények előterjesztéséhez, érvényesítéséhez, illetve védelméhez, az Adatkezelők
megvizsgálják, hogy az adat törölhető-e. Amennyiben az adat kezelését jogszabály nem írja elő, az adat kezelésére a
hozzájáruláson kívül az Adatkezelőknek nincs jogalapja, vagy a jogalap ellenére nem indokolt az adat kezelése, az Érintett
kérelmére az Adatkezelők törlik az adatokat. Amennyiben a törlési kérelmet az Adatkezelők megtagadják, erről az Érintettet
minden esetben tájékoztatják, egyúttal pontosan megjelölik a törlési kérelem megtagadásának jogalapját és a jogorvoslati
lehetőségeket is.
? Az érintett tiltakozik az adatkezelés ellen. Amennyiben az adatkezelés alapja az Adatkezelő jogos érdeke, az Érintett
tiltakozhat az adatok kezelése ellen. Ebben az esetben az Adatkezelők az adatokat törlik, kivéve, ha bizonyítható, hogy az
adatkezelést olyan kényszerítő erejű jogos okok indokolják, amelyek elsőbbséget élveznek az Érintett érdekeivel, jogaival és
szabadságaival szemben, vagy amelyek jogi igények előterjesztéséhez, érvényesítéséhez vagy védelméhez kapcsolódnak.
Amennyiben az Érintett a reklámozási célú adatkezelés ellen tiltakozik, az adatokat az Adatkezelők törlik.
? Bizonyossá válik, hogy az adatok kezelése jogellenes. Amennyiben az adat kezelése jogellenes, azt az Adatkezelők minden
esetben törlik, mihelyt a jogellenes adatkezelés ténye nyilvánvalóvá válik.
? Az adatok törlése jogi kötelezettség teljesítéséhez szükséges, vagy a törlést bíróság vagy a Nemzeti Adatvédelmi és
Információszabadság Hatóság elrendelte. Ha a törlés jogszabály alapján kötelező, vagy azt bíróság vagy Hatóság rendelte
el, és a rendelkezés jogerős, az Adatkezelők az adatokat törlik.
? Az adatok tárolásának előre, jogszabályban vagy a hozzájárulásban meghatározott határideje lejárt. Amennyiben az
adatkezelés időtartamát jogszabály írja elő, az Adatkezelők az adatokat a jogszabályban meghatározott időtartam elteltével
törlik. A Pmt.-ben meghatározott adatokat az Adatkezelők a Pmt. 56. § alapján az üzleti kapcsolat megszűnését követő nyolc
év elteltével törlik; a számvitelről szóló 2000. évi C. törvény alapján számviteli bizonylatnak minősülő iratokat, adatokat az
Adatkezelők nyolc év elteltével törlik. A törlés esetén az Adatkezelők az adatokat személyazonosításra alkalmatlanná teszik.
Amennyiben jogszabály azt előírja, az Adatkezelők a személyes adatot tartalmazó adathordozót megsemmisítik.
14.6 ADATVÉDELMI INCIDENSEK KEZELÉSE
Adatvédelmi incidens a biztonság olyan sérülése, amely a továbbított, tárolt vagy más módon kezelt személyes adatok véletlen vagy
jogellenes megsemmisítését, elvesztését, megváltoztatását, jogosulatlan közlését vagy az azokhoz való jogosulatlan hozzáférést
eredményezi. Az Adatkezelők az adatvédelmi incidenst haladéktalanul bejelentik a Nemzeti Adatvédelmi és Információszabadság
Hatóságnak, kivéve, ha az adatvédelmi incidens valószínűsíthetően nem jár kockázattal az Érintettek jogaira és szabadságaira nézve.
Az Adatkezelők az adatvédelmi incidenseket nyilvántartják, együtt az adott incidenshez kapcsolódó intézkedésekkel. Ha az incidens
súlyos (azaz vélhetően magas kockázattal jár az Érintett jogaira és szabadságaira nézve), az Adatkezelők indokolatlan késedelem
nélkül tájékoztatják az Érintettet az adatvédelmi incidensről.
15. AZ ÉRINTETTEK JOGAI ÉS ÉRVÉNYESÍTÉSÜK
15.1 AZ ÉRINTETTEK JOGAI
Tájékoztatás (hozzáférés): Az Érintettnek joga van ahhoz, hogy az adatainak kezeléséről tájékoztatást kapjon. Az Adatkezelők az
Érintettet az adatok felvételekor tájékoztatják az adatkezelésről, emellett a jelen Tájékoztató bármikor elérhető az Érintett számára. Az
Érintett az adatkezelés folyamán bármikor teljes körű tájékoztatást kérhet az adatai kezeléséről. Az Érintett kérheti, hogy az
Adatkezelők az adatok másolatát bocsássák a rendelkezésére.
Helyesbítés: Az Érintett kérheti, hogy az Adatkezelők a rá vonatkozó pontatlan adatokat helyesbítsék, a hiányos adatot kiegészítsék.
Törlés, hozzájárulás visszavonása: Az Érintett bármikor visszavonhatja az adatai kezeléséhez adott hozzájárulását, kérheti az adatai
törlését. Az Adatkezelők a törlést csak akkor tagadják meg, amennyiben az adatkezelés jogszabályon alapul, vagy az adatkezelés
szükséges jogi igények előterjesztéséhez, érvényesítéséhez, illetve védelméhez.
Korlátozás: Az Érintettnek jogában áll az adatkezelés korlátozását kérni, az alábbi esetekben:
? az Érintett vitatja a személyes adatok pontosságát, ez esetben a korlátozás arra az időtartamra vonatkozik, amely lehetővé
teszi, hogy az Adatkezelők ellenőrizzék a személyes adatok pontosságát;
? az adatkezelés jogellenes, és az Érintett ellenzi az adatok törlését, és ehelyett kéri azok felhasználásának korlátozását;
? az Adatkezelőknek már nincs szükségük a személyes adatokra adatkezelés céljából, de az Érintett igényli azokat jogi igények
előterjesztéséhez, érvényesítéséhez vagy védelméhez;
? az Érintett tiltakozott az adatkezelés ellen; ez esetben a korlátozás arra az időtartamra vonatkozik, amíg megállapításra nem
kerül, hogy az Adatkezelők jogos indokai elsőbbséget élveznek-e az Érintett jogos indokaival szemben.
? Ha az adatkezelés korlátozás alá esik, az ilyen személyes adatokat a tárolás kivételével csak az Érintett hozzájárulásával,
vagy jogi igények előterjesztéséhez, érvényesítéséhez vagy védelméhez, vagy más természetes vagy jogi személy jogainak
védelme érdekében, vagy az Európai Unió, illetve valamely tagállam fontos közérdekéből lehet kezelni.
Tiltakozás: Amennyiben az adatkezelés az Érintett, az Adatkezelők, vagy harmadik fél jogos érdekének érvényesítésén alapul, az
Érintett jogosult arra, hogy a saját helyzetével kapcsolatos okokból bármikor tiltakozzon személyes adatainak kezelése ellen. Ebben
az esetben az Adatkezelők a személyes adatokat nem kezelhetik tovább, kivéve, ha az Adatkezelők bizonyítják, hogy az adatkezelést
olyan kényszerítő erejű jogos okok indokolják, amelyek elsőbbséget élveznek az Érintett érdekeivel, jogaival és szabadságaival
szemben, vagy amelyek jogi igények előterjesztéséhez, érvényesítéséhez vagy védelméhez kapcsolódnak. Ha a személyes adatok
kezelése közvetlen üzletszerzés érdekében történik, az Érintett jogosult arra, hogy bármikor tiltakozzon a rá vonatkozó személyes
adatok e célból történő kezelése ellen. A tiltakozás esetén az Adatkezelők a közvetlen üzletszerzési célú adatkezelést megszüntetik.
Adathordozhatóság: Az Érintett jogosult arra, hogy a rá vonatkozó személyes adatokat tagolt, széles körben használt, géppel
olvasható formátumban megkapja, továbbá jogosult arra, hogy ezeket az adatokat egy másik adatkezelőnek továbbítsa, feltéve, hogy
az adatkezelés automatizált módon történik. Az Érintett jogosult arra, hogy – ha ez technikailag megvalósítható – kérje a személyes
adatok más adatkezelőhöz történő közvetlen továbbítását.
15.2 AZ ÉRINTETT JOGAINAK BIZTOSÍTÁSA, AZ ÉRINTETT KÉRELMEINEK KEZELÉSE
Az Adatkezelők az Érintettet a kapcsolatfelvétellel egyidejűleg tájékoztatják az adatok kezeléséről. Az adatkezelésről szóló rövid
tájékoztatás megtalálható azon nyomtatványokon, amelyeken az Érintett megadja adatait, és az Érintett számára elérhető a jelen,
részletes Tájékoztató is, amelynek tényére és elérhetőségére az Adatkezelők az Érintett figyelmét felhívják.
Az Érintett a jogai gyakorlására irányuló kérelmet bármilyen módon (szóban, írásban) eljuttathatja az Adatkezelőkhöz. Az
Adatkezelők a kérelmet haladéktalanul megvizsgálják, döntést hoznak a kérelem teljesítéséről, és megteszik a szükséges
intézkedéseket. Az Adatkezelők a megtett intézkedésekről egy hónapon belül tájékoztatják az Érintettet. A tájékoztatás minden
esetben tartalmazza az Adatkezelők által megtett intézkedést, vagy az Érintett által kért tájékoztatást. Amennyiben az Adatkezelők a
kérelem teljesítését elutasítják (nem teszik meg a kérelem teljesítéséhez szükséges intézkedéseket), a tájékoztatás tartalmazza a
megtagadás jogalapját, indokait, és az Érintett jogorvoslati lehetőségeit.
Az Adatkezelők a kérelem teljesítését nem kötik díj fizetéséhez, a költségek megtérítéséhez.
Amennyiben a kérelem benyújtásának körülményei, módja miatt nem bizonyos, hogy a kérelem az Érintettől származik, az
Adatkezelők kérhetik, hogy a kérelmező igazolja jogosultságát, vagy a kérelmet olyan módon terjessze elő, hogy a jogosultság
egyértelműen megállapítható legyen.
Az Adatkezelők minden olyan címzettet tájékoztatnak a helyesbítésről, törlésről vagy adatkezelés-korlátozásról, akivel, illetve
amellyel a személyes adatot közölték, kivéve, ha ez lehetetlennek bizonyul, vagy aránytalanul nagy erőfeszítést igényel. Az Érintettet
kérésére az adatkezelő tájékoztatja e címzettekről.
15.3 JOGORVOSLAT
Az Érintett a jogainak sérelme esetén kérheti, hogy az Adatkezelők a jogellenes adatkezelést szüntessék meg, az adatkezelést, az
Érintett kérelmének elutasítását vizsgálják meg. Az Adatkezelők az Érintett ilyen irányú panaszát minden esetben kivizsgálják, és
annak eredményéről az Érintettet tájékoztatják.
Az Érintett panaszával fordulhat közvetlenül a Nemzeti Adatvédelmi és Információszabadság Hatósághoz (cím: 1125Budapest,
Szilágyi Erzsébet fasor 22/c.; telefon:+36-1-391-1400; email: ugyfelszolgalat@naih.hu ; honlap: www.naih.hu ) is.
Az Érintett jogosult jogainak megsértése esetén bírósághoz fordulni.
Az Adatkezelők az Érintettet kérelemre részletesen tájékoztatják a per elbírálására hatáskörrel és illetékességgel rendelkező
bíróságról, a perindítás lehetőségéről.
Hasonló ingatlanok
Biatorbágy, Mandula utca
Nagyméretű családi ház - Nyaraló Biatorbágyon a Pecatónál
Biatorbágy, Barackvirág utca
Biatorbágyon a Barackvirág utcában eladó kétgenerációnak kialakí...